Q.Bus Projektvorstellung


Auf dieser Seite möchten wir Ihnen einige Beispiele aus unserer Arbeit zeigen.

Häufig ähneln sich gewisse Bausituationen. Wenn Ihnen eine Ausführung gefällt, laden Sie sich einfach die Zeichnung herunter und schreiben Sie die benötigten Maße an. Wir senden Ihnen dann gerne einen ganz individuellen Q.Bus Projektvorschlag verbunden mit einer Richtpreiskalkulation oder auf Wunsch auch mit einem kompletten Angebot.

Wir freuen uns auf Ihre Anfrage.


Übersicht der hier vorgestellten Q.Bus Projektvorstellungen und Entwürfe:

Projekt Q.Bus SZ mit 2 Senkrechtmarkisen SZ11 in Cernay


Vorher - Nachher

Terrasse ohne Q.Bus in Cernay vorher
Terrasse mit Q.Bus in Cernay nachher



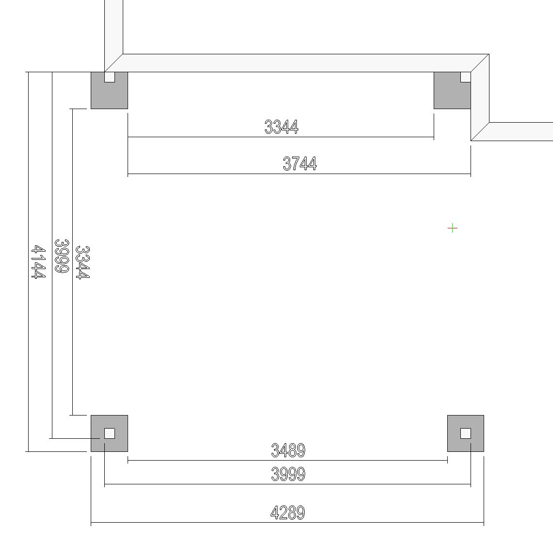
Prpjektvorstellung eines Q.Bus als Reihenanlage mit zusätzlichen Senkrechtmarkisen


Dieses Q.bus Projekt planen wir gerade für einen Kunden in Hildesheim. Sie sehen eine Q.Bus Reihenanlage freistehend mit zwei Horizontalmarkisen und zwei Vertikalmarkisen. Zusätzlich aber wird das Projekt links durch eine seitliche Senkrechtmarkise SZ 11 und frontal in beiden Feldern ebenso durch jeweils eine zusätzliche SZ 11 Senkrechtmarkise mit Zip System erweitert.

Hier sehen Sie die Zeichnung und gleichzeitig den Fundamentplan für den Q.bus.



Projektvorstellung eines Q.Bus mit 4 Senkrechtmarkisen Solaroll SZ11 und seitlichen Überstand über die Hauswand


Diesen Q.bus 3.0 SZ planen wir gerade für einen Kunden in Magdeburg.

Die Besonderheit in diesem Projekt liegt darin, dass dieser Q.bus zusätzlich mit 4 Stück Solaroll SZ 11 Senkrechtmarkisen ausgestattet ist. Der Q.bus steht ca 1,50 m über die Hausecke über. Dafür wurde im hinteren Bereich eine zusätzliche Stütze integriert, damit auch rückwärtig eine Senkrechtmarkise mit ZIP eingebaut werden kann.



Projektvorstellung eines Q.bus WA mit seitlicher Senkrechtmarkise SZ 11


Diesen Q.bus 3.0 WA mit seitlicher Senkrechtmarkise SZ 11 planen wir gerade für einen Kunden in Magdeburg.
Es handelt sich hierbei um einen Q.bus mit Wandmontage. Dabei kommt ein zusätzliches Wandmontageprofil zum Einsatz. Das Wandmontageprofil sorgt nicht nur für eine einfachere Montage, auch die Elektroverkabelung wird dadurch deutlich einfacher bei Q.Bus Systemen mit Wandmontage.
Auf der linken Seite, das ist in diesem Fall die Wetterseite, wird eine Senkrechtmarkise Solaroll SZ11 integriert. Die Abrollung der seitlichen ZIP-Markise erfolgt außen, so dass bei der Außenansicht eine glatte Fläche entsteht. Das ist optisch besonders ansprechend.

Im weiteren sehen Sie unsere Planung und die durchgeführte Simulation des Beschattungssystems vor Ort.
Geplant und geliefert von Bauelemente direkt, vor Ort montiert von unserem Magdeburger Montagepartner Illmer Bauservice.



Projektvorstellung eines Q.Bus als Reihenanlage


Hier sehen Sie die Projektvorstellung eines Q.bus als Reihenanlage für einen Kunden in Groitzsch. Dieser Q.bus soll an der Stirnseite einer Balkonplatte montiert werden. Deshalb kommt hier der Q.Bus als Wandanschlußvariante zum Einsatz. Auf der rechten Seite wird zusätzlich eine Senkrechtmarkise Solaroll SZ 11 geplant.



Fundamentplan für den Q.Bus


Gern senden wir Ihnen für Ihr Q.bus Projekt einen Fundamentplan. Damit können Sie die Fundament Erstellung vorbereiten. Hier sehen Sie beispielhaft den Fundamentplan für das Q.bus Projekt in Groitzsch.




AR (Augmented Reality) Vorschau des Q.Bus


Gern unterstützen wir Sie bei der Planung Ihres Q.bus. Dafür steht uns eine AR Software ( Augmented Reality) zur Verfügung, mit deren Hilfe wir verschiedene Varianten des Q.bus schon einmal virtuell auf Ihrer Terrasse platzieren können. So erhalten Sie schon im Vorfeld einen visuellen Eindruck vom Q.bus auf Ihrer Terrasse und vom Schattenwurf der Markisen



AR Visualisierung in Hohen Neuendorf


Dieser Q.Bus 3.0 SZ soll in Hohen Neuendorf nördlich von Berlin entstehen.

Mithilfe unseres AR Visualisierungstools haben wir unserem Kunden schon einmal verschiedene Möglichkeiten demonstriert. Der Q.bus ist etwas seitlich von der Terrasse positioniert. Mithilfe der AR Visualisierung können verschiedene Varianten in Bezug auf Größe Form und Tuch Auswahl demonstriert werden.

Hier sehen Sie einige Beispiele:



Fundamentplan für Q.Bus in Hausecke



Projektvorstellung eines Q.bus freistehend mit seitlicher Senkrechtmarkise SZ 11


Diesen freistehenden Q.bus mit einer seitlichen SZ11 Senkrechtmarkise planen wir gerade für einen Kunden in Chemnitz.

Hier sehen Sie ein paar Eindrücke aus der durchgeführten AR Simulation vor Ort. Auf der Terrasse sehen Sie sogar noch etwas Schnee liegen. Der Q.bus wirkt sehr realistisch, obwohl er tatsächlich nur als Augmented Reality existiert. Außerdem sehen Sie hier die Zeichnungen nach dem durchgeführtem Feinaufmaß vor Ort.



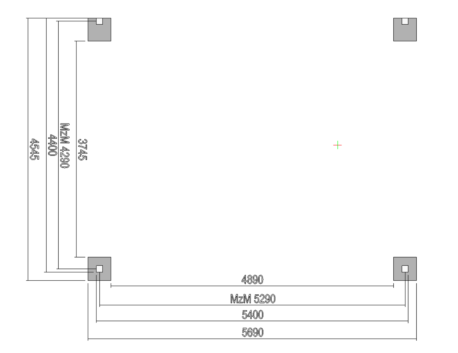
Fundamentplan für freistehenden Q.bus als Reihenanlage


Hier sehen Sie die Zeichnung und den Fundamentplan für einen freistehenden Q.bus als Reihenanlage. Diesen Q.bus planen wir aktuell für einen Kunden in Karlsruhe.



Projekt Q.Bus mit seitlichen Überstand und SZ11 in Röthlein


Vorher - Nachher

Reetdachhaus ohne Terrassendach Heidgraben
Reetdachhaus mit Terrassendach Heidgraben



Fundamentplan für Q.Bus freistehend mit 3 Senkrechtmarkisen Solaroll SZ11



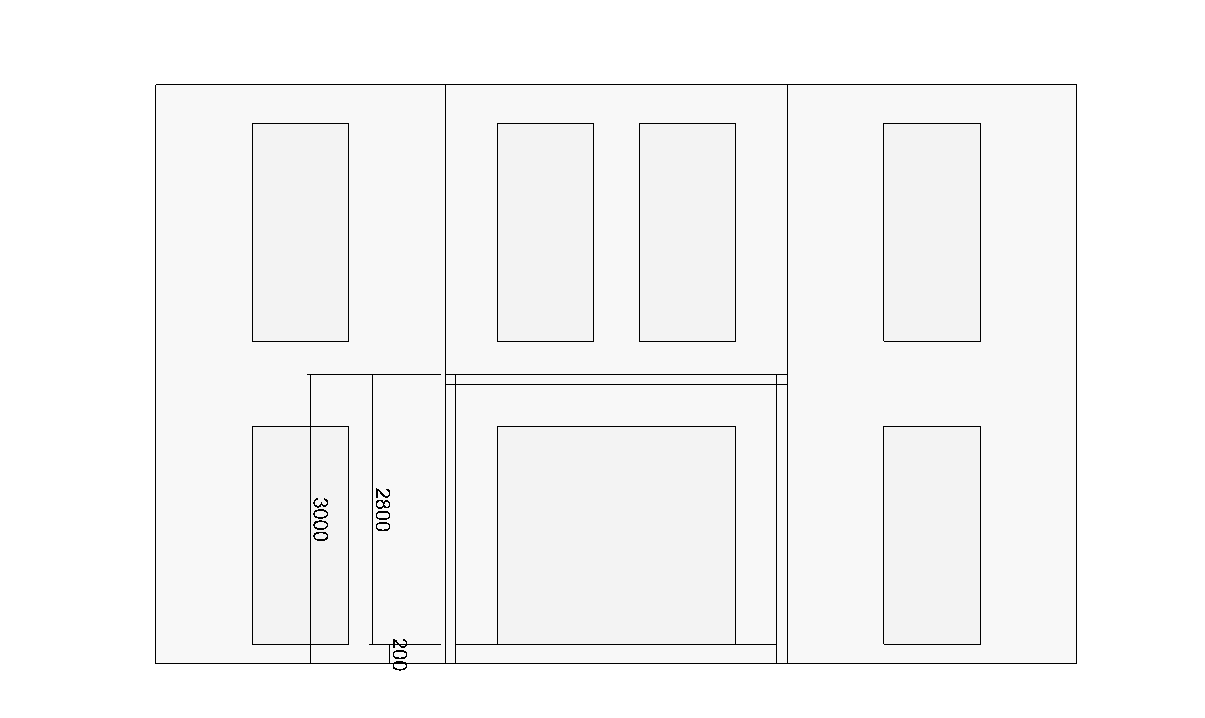
Projektvorstellung eines Q.Bus zwischen übereinanderliegende Fenster


Häufig ist es gar nicht so einfach, die richtige Höhe für den Q.bus festzulegen. Wenn man zwei übereinanderliegende Fenster hat, ist es meist eine gute Entscheidung, das Profil des Q.bus mittig in der Höhe anzuordnen. Gerne unterstützen wir mit einer kleinen Zeichnung, damit Sie eine Vorstellung von der Relation bekommen.

Diesen Q.bus planen wir gerade für eine Familie in München. Wir sehen die Höhe von 2,5 m, das obere Fenster hat eine Höhe Unterkante von 2,85m.





Projektvorstellung Q.Bus angekoppelt an Balkonplatte


Die Voraussetzungen für die Integration eines Q.Bus ans Haus sind natürlich von Haus zu Haus unterschiedlich.

In diesem Fall sehen Sie ein Haus mit integriertem Balkon bzw einer Betonplatte, an welcher der Q.Bus angebunden werden soll. Um den seitlichen Sonnen- und Windschutz zu gewährleisten, muss die seitliche Solaroll SZ11 Senkrechtmarkise mit ZIP System natürlich weiter bis zum Ende der Balkonplatte an die Hauswand geführt werden.

Hier sehen Sie Fotos und unseren Entwurf dazu. Das Projekt wird zwischenzeitlich umgesetzt. Wenn alles fertig ist, hoffen wir Ihnen auch die Fotos vom fertigen Projekt zeigen zu können.

Gern unterstützen wir Sie auch bei etwas komplizierteren Bausituationen. Wir freuen uns auf Ihre Anfrage.
Dafür benötigen wir nach Möglichkeit ein zwei Fotos von der vorhandenen Bausituation und eine kleine Skizze mit den groben Maßen, damit wir uns eine Vorstellung machen können.






Q.Bus Projektvorstellung in Ahrensfelde


Diesen Q.bus in Wandanschluss Ausführung planen wir gerade für einen Kunden in Ahrensfelde bei Berlin. Montiert wird er am Erker einer modernen Stadtvilla dafür kommt ein Wandanschlussprofil zum Einsatz. Die Füße stehen außerhalb der Terrasse und werden um 200 mm versenkt. Die Montage erfolgt im März 2024 durch unseren Montagepartner MSG Aluminium Bauelemente GmbH aus Magdeburg.






Projektvorstellung Q.Bus Beschattungssystem als 3-Feld Anlage


Der Q.bus als 1- Feldanlage ist in der Breite auf 6 m beschränkt. Wenn man eine breitere Beschattung sucht, besteht die Möglichkeit mehrere Felder des Q.bus zu koppeln. Aktuell planen wir sogar eine Q.bus 3-Feldanlage mit knapp 12 m Breite an beschatteter Fläche für einen Kunden in Kusterdingen in Baden Württemberg. Theoretisch lässt sich die Breite so unbegrenzt erweitern. Hier sehen Sie einen ersten Entwurf der Q.bus 3-Feldanlage als Wandanschluß Variante. Natürlich könnte eine derartige Ausführung auch frei stehend konzipiert werden.






Projektvorstellung Q.Bus Kombination aus Wandanschluss und freistehender Variante - Entfall einer Stütze


Diesen Q.Bus planen wir aktuell für einen Kunden in Niederweimar. Der Q.Bus ist eine Kombination aus der Wandanschluss und freistehenden Variante. Dadurch kann auf ein der Stützen verzichtet werden.






Projektvorstellung Q.Bus 2-Feld Anlage auf Holzterrassendielen


Diesen Q.bus planen wir gerade für einen Kunden in Duisburg. Die Montage ist im April diesen Jahres geplant. Es handelt sich um einen Q.bus als Wandanschluss-Variante in zweiteiliger Ausführung. Die vorhandene Terrasse ist mit einer Holzterrassendiele belegt. Dafür entstehen unter der Terrassenfläche 3 Fundamente für die Aufnahme der Stützenfüße. Die Fundamente für die Stüzenfüße sind damit versenkt unter dem Terrassenboden montiert. Zusätzlich ausgestattet wird dieser Q.bus mit vier Stück umlaufenden Senkrechtmarkisen Solarol SZ11, so dass quasi ein komplett geschlossener textiler Wintergarten entsteht.






Projektvorstellung Q.Bus 2-Feld Anlage auf erhöhter Terrasse


Diesen Q.bus planen wir gerade für einen Kunden in Saarbrücken. Die Montage ist im Mai diesen Jahres geplant. Es handelt sich um einen Q.bus als freistehende Variante in zweiteiliger Ausführung. Zusätzlich ausgestattet wird dieser Q.bus mit einer Senkrechtmarkise Solarol SZ11 auf der linken Seite.